
-
From Our Gallery
Description
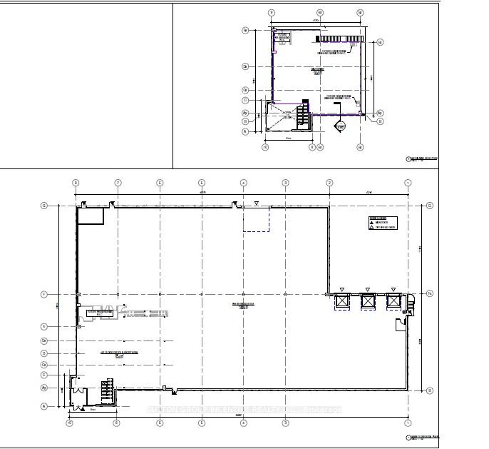
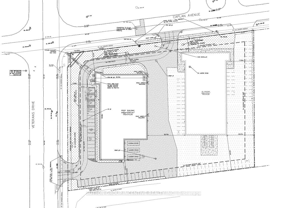
BRAND NEW INDUSTRIAL BUILDING - Completion targets for December 2026.This high-profile corner facility at Veteran's Drive and Caplan Avenue offers exceptional visibility and corporate presence. Designed for functionality and efficiency, the building features just under 35' overall height, 30' clear ceiling height and efficient 50'x54' bay sizing - providing maximum flexibility for warehousing, manufacturing and logistics. New construction shall include R-40 insulated wall systems, delivering superior energy efficiency and reduced operating costs. Two points of access to the building and a centrally positioned footprint on the site allow for smooth, uninterrupted logistics and circulation. Light Industrial zoning permits a broad range of uses. The Landlord is prepared to consider competitive tenant incentive packages for qualified tenants. Additional rent is estimated and subject to construction completion and re-assessment.
Location Description
Located on SE corner of Veterans & Caplan Ave
Property Detail
- Community: 400 West
- Property Type: Vacant/Commercial
- Garages: Outside/Surface
- Annual Property Taxes : $ 3.5
- sqft
Facts and Features
- Parking Type : Outside/Surface
Amenities
Listing Contracted With: SUTTON GROUP INCENTIVE REALTY INC.





