
-
From Our Gallery
Description
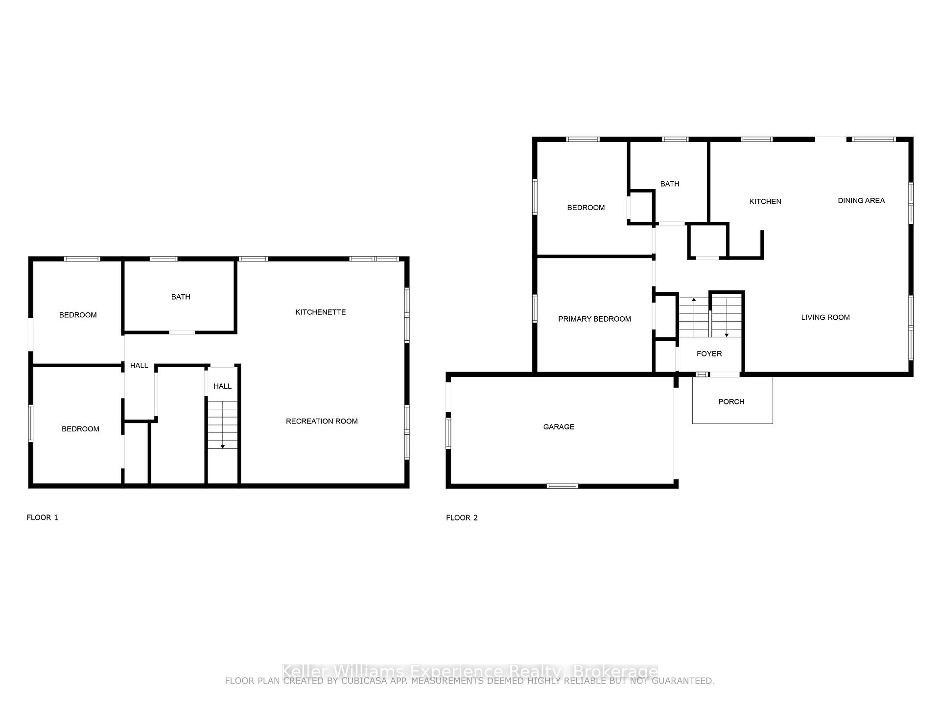
Rare Double Lot. Multi-Generational Setup. Endless Storage.Welcome to 329 & 331 Browns Line Road - a beautifully maintained raised bungalow offering over 2,000 sq ft of finished living space across two fully self-contained levels.The main floor features 2 bedrooms, a renovated 4-piece bath, and an updated kitchen filled with natural light. The lower level offers a private 1-bedroom suite with its own full kitchen and bath - perfect for extended family or flexible living.What makes this property exceptional?Two separately deeded 50 x 140 ft lots included on a dead end road.That means space for trailers, boats, snowmobiles, ATVs, gardens, and more - with a negotiable sea container for additional storage. The backyard has been professionally redesigned with raised beds and a private patio retreat.Located across from Waubaushene Beaches Provincial Park and just 1.3 km to Georgian Bay water access and the Trans Canada Trail. Less than 2 minutes to Hwy 400 - 35 minutes to Barrie, 90 minutes to Toronto.Built in 1998 | Septic + Municipal Water | Taxes approx. $2,703Space. Privacy. Flexibility. And a double lot - a rare find in Waubaushene.
Location Description
Dodge Dr / Browns Line
Property Detail
- Community: Waubaushene
- Property Type: Owner/Residential Freehold
- Bedrooms: 3
- Bath: 2
- Garages: Attached
- Annual Property Taxes : $ 2824
- sqft
Facts and Features
- Foundation Type: Poured Concrete
- Counstruction Material : Vinyl Siding
- Total Parking Space : 6
- Parking Type : Attached
Amenities
Listing Contracted With: Keller Williams Experience Realty






