
-
From Our Gallery
Description
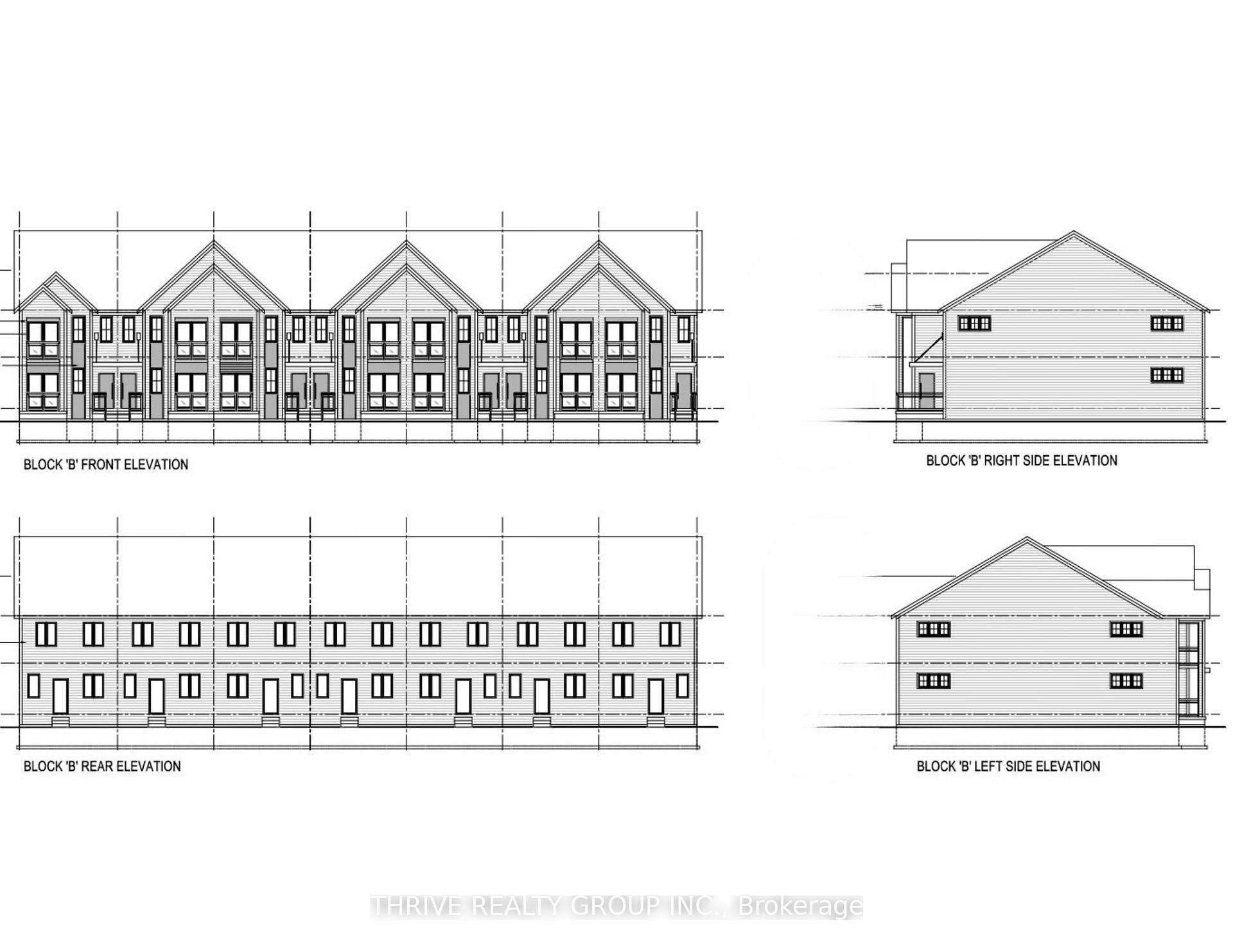
Prime Development Opportunity in Sought-After West London! Unlock the potential of this exceptional nearly 1-acre development site, perfectly positioned just steps from the vibrant intersection of Commissioners Rd West and Wonderland Road. This near shovel-ready property comes with an approved plan for a modern stacked townhome community, featuring 26 stylish units across two architecturally designed buildings. Whether you're a seasoned builder or a savvy investor, this is your chance to break ground in one of London's most desirable neighbourhoods. Surrounded by top-tier amenities, shopping, dining, and convenient transit options, this A+ location promises strong market appeal and future growth. Don't miss this rare opportunity to bring a visionary residential project to life in a high-demand area.
Location Description
Westmount Cres.
Property Detail
- Community: South M
- Property Type: Vacant/Residential Freehold
- Annual Property Taxes : $ 5899
- sqft
Facts and Features
Amenities
Listing Contracted With: THRIVE REALTY GROUP INC.






