
-
From Our Gallery
Description
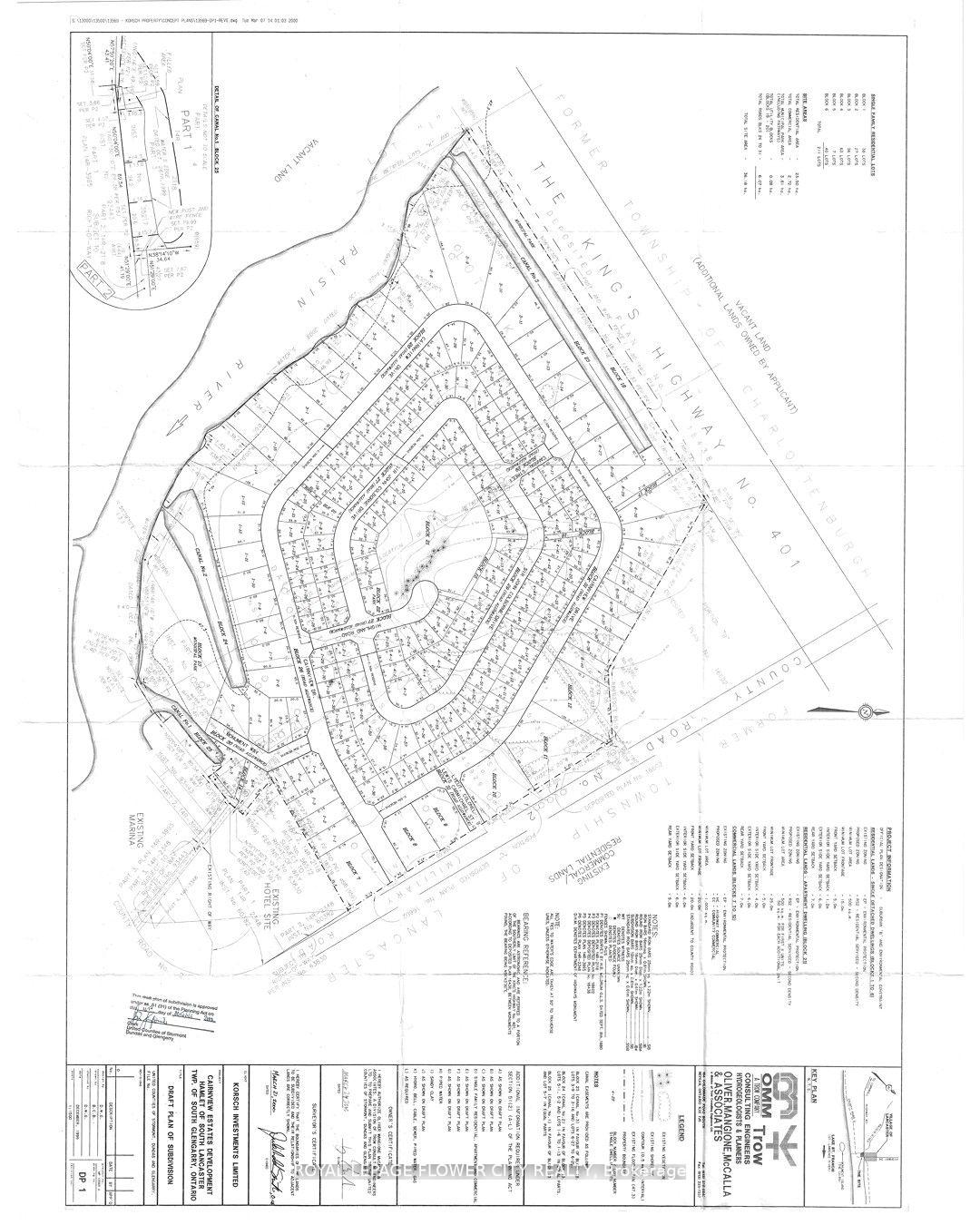
Property for sale formerly known as Cairnview Estates Development is a 68.82-acre property with an Approved Draft Plan of Subdivision located in South Lancaster, Ontario, in the Township of South Glengarry. The Draft Plan calls for 184 residential lots and 4 other blocks of land that could be commercial or institutional. 26 of the residential lots are waterfront lots backing onto the Raisin River and two private canals. From the Raison River, you have access (650meters) to the St. Lawrence River. Lancaster is located 21km from the Quebec/Ontario border and52km from Vaudreuil-Dorion. The Property has access to full services that include: municipal water, municipal sewers, electrical, and natural gas.
Location Description
401 & County Rd 2
Property Detail
- Community: 722 - Lancaster
- Property Type: Vacant/Commercial
- Annual Property Taxes : $ 14000
- sqft
Facts and Features
Amenities
Listing Contracted With: ROYAL LEPAGE FLOWER CITY REALTY



