
-
From Our Gallery
Description
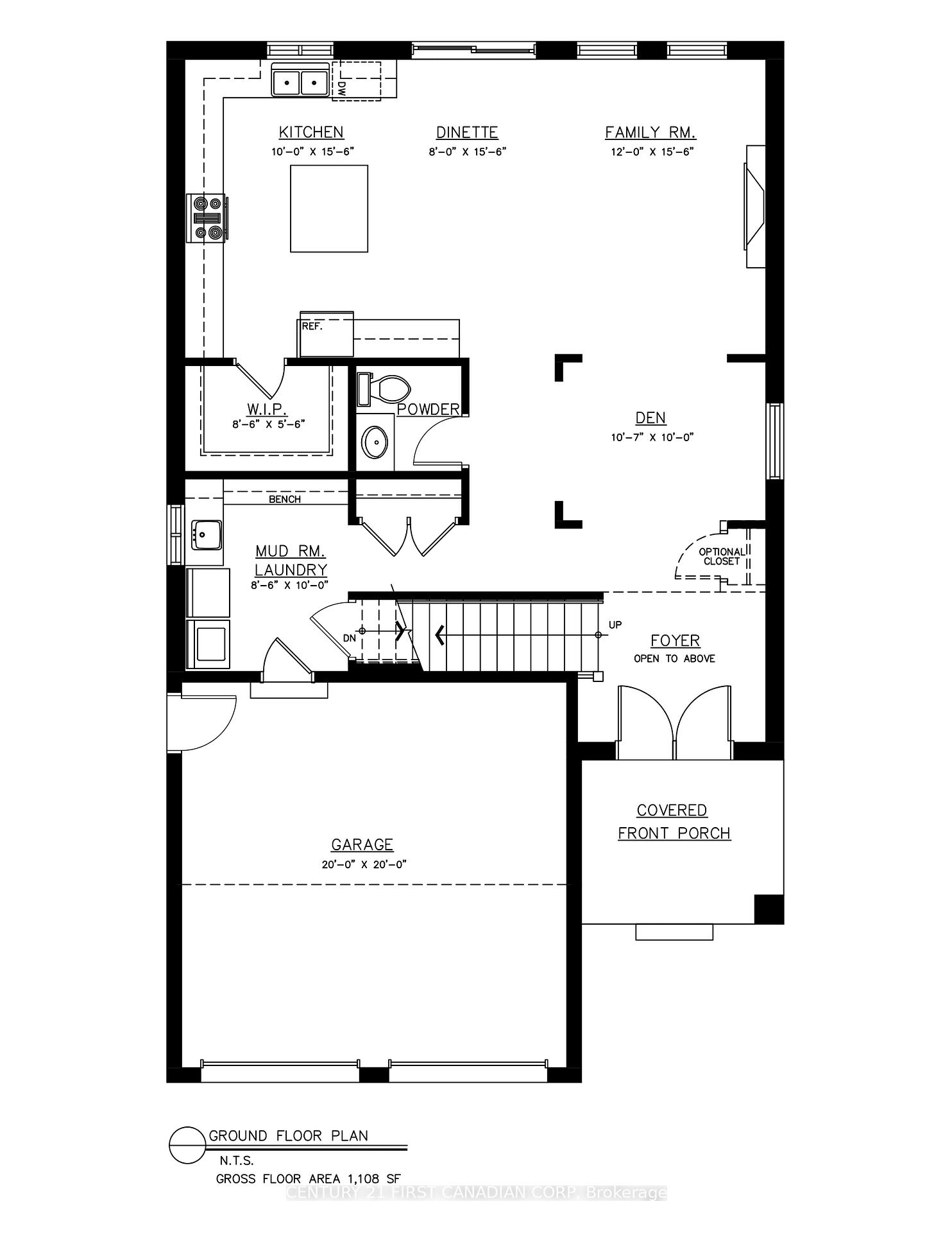
The McLaren - A beautifully crafted 2-storey home offering 2,305 sq. ft pf thoughtfully designed living space featuring 4 spacious bedrooms, 2.5 bathrooms, and a layout that blends functionality with modem comfort. The main floor boasts a bright, open-concept design with a welcoming family room, generous dinette, and a versatile den-perfect for a home office, study, or playyoom. Upstairs, you' Il find a convenient second-floor laundry room, two full bathrooms, and four large bedrooms, including a private primary ideal for relaxation. The McLaren IS the perfect choice for growing families or those seeking space, style, and comfort-all under one roof. Built by Birani Design & Build, a trusted name m London's construction community, this home features exceptional craftsmanship and thoughtful design in Talbot Village - Phase 7, one of the city's most sought-aner communities. This IS your chance to live in a mature, family-friendly neighbourhood that's quickly becoming one of London's most desirable places to call home. Phase 7 offers a fantastic location, with a brand-new public school opening in 2025, and is within walking distance to Ecole élémentaire La Pommeraie (French public school), parks with basketball courts, soccer fields and scenic trails winding around tranquil ponds. Talbot Village Shopping Plaza is just minutes away, offering No Frills, Dollarama, restaurants banks, GoodLife Fitness, medical clinics, and more. Even greater convenience is coming with a new commercial plaza set to Include a veterinarian, dental clinic, Starbucks, and other exciting businesses. The brand-new YCMA, only a short walk away, brings state-of-the-art health and wellness services to the neighbourhood. Commuting is a breeze with quick access to Highways 401 & 402, perfect for reaching St Thomas or the beaches of Port Stanley. Prefer a greener option? Enjoy the new bike lanes on Colonel Talbot Road, connecting you to nearby Lambeth' s small-town charm. To be Built.
Location Description
pack road & regiment rd
Property Detail
- Community: South V
- Property Type: Vacant/Residential Freehold
- Bedrooms: 4
- Bath: 3
- Garages: Attached
- Annual Property Taxes : $ 0
- sqft
Facts and Features
- Foundation Type: Poured Concrete
- Counstruction Material : Brick-Vinyl Siding
- Total Parking Space : 4
- Parking Type : Attached
Amenities
Listing Contracted With: CENTURY 21 FIRST CANADIAN CORP






