
-
From Our Gallery
Description
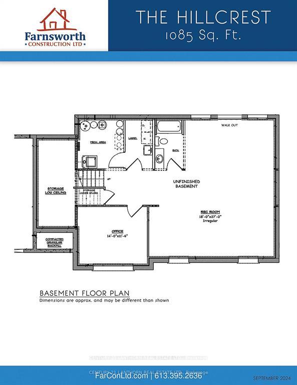
Looking for a new home in the country? How about 2 acres on a paved road with natural gas? Construction is under way and framing almost complete, but you still have time to make it your own with some builder color options or upgrades. Offered by Farnsworth Construction, this Hillcrest model offers 1407 sq ft on the main level plus a full unfinished basement with a walk-out, a bath roughed in, and ample space to finish as you please. Main level features a foyer with 3 entrances, open concept K/DR area with access to a covered deck overlooking back yard, a living room with vaulted ceilings, plus 3 bedrooms and 2 baths. Ceramic tile in foyer and bathrooms, and laminate floors throughout main level. Attached double garage with insulated doors and openers, Gentek horizontal vinyl siding, natural gas furnace and A/C. Plus comes with full Tarion warranty. Not the one you are looking for? We have other options on rural lots which may be to your liking.
Location Description
Hwy 62/Crookston Road
Property Detail
- Community: Centre Hastings
- Property Type: Vacant/Residential Freehold
- Bedrooms: 3
- Bath: 2
- Garages: Attached
- Annual Property Taxes : $ 0
- sqft
Facts and Features
- Foundation Type: Poured Concrete
- Counstruction Material : Vinyl Siding
- Total Parking Space : 6
- Parking Type : Attached
Amenities
Listing Contracted With: CENTURY 21 LANTHORN REAL ESTATE LTD.




