
-
From Our Gallery
Description
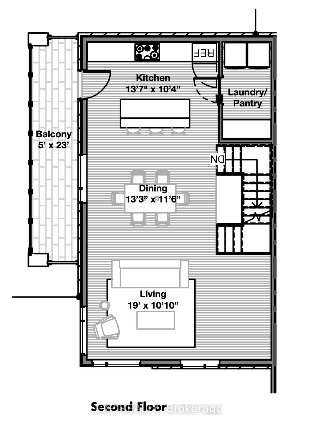
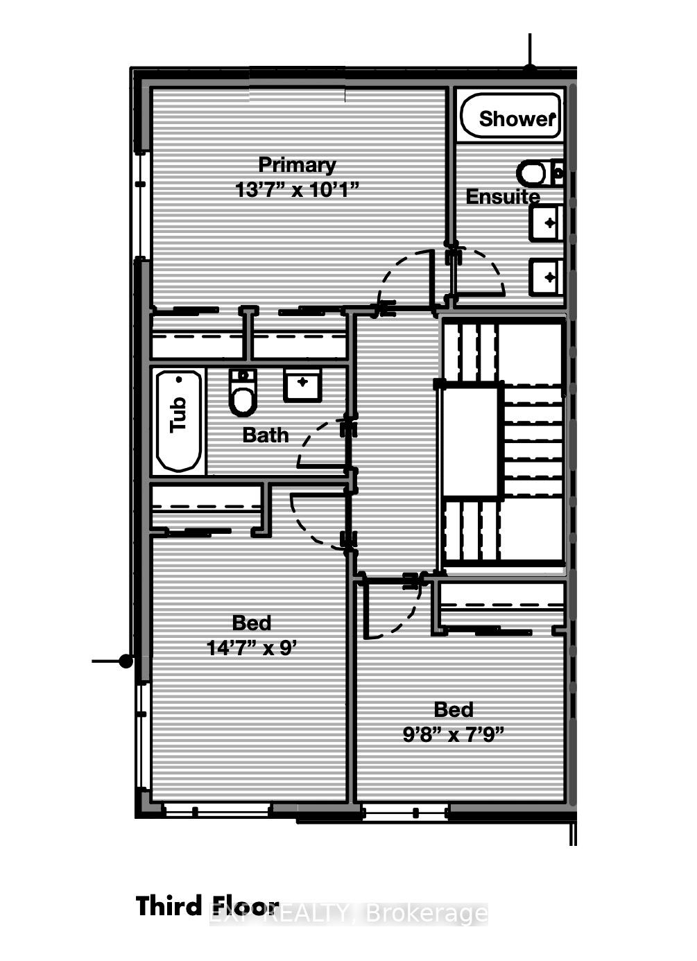
Brand-new executive townhome for rent in the heart of Wellington Village offering over 2,000 sq. ft. of beautifully designed living space across three storeys plus a fully finished basement and attached garage. The main level features a spacious tiled foyer with double closets and inside access to the garage, along with a bright bedroom or home office and a convenient 3-piece bath. The second level boasts an open-concept kitchen, living and dining area flooded with natural light, complete with a large centre island, quartz countertops, stainless steel appliances, an oversized walk-in pantry with laundry, and access to an impressive 5' x 20' private balcony. The third floor offers a generous primary suite with double closets and an ensuite bath, plus two additional bedrooms and a full bathroom. The fully finished basement provides a bright rec room and finished storage space. Ideally located steps to Fisher Park and Elmdale Public School, minutes to the shops and restaurants along Wellington Street West, walking distance to the Tunney's Pasture O-train station, with quick access via the Harmer Avenue Footbridge to the Civic Hospital and the Experimental Farm, and easy Highway 417 access for seamless commuting-an exceptional opportunity to enjoy modern living in one of Ottawa's most sought-after neighbourhoods.
Location Description
Harmer & Iona
Property Detail
- Community: 4303 - Ottawa West
- Property Type: Vacant/Residential Freehold
- Bedrooms: 4
- Bath: 3
- Garages: Attached
- sqft
Facts and Features
- Foundation Type: Concrete
- Counstruction Material : Brick-Wood
- Total Parking Space : 1
- Parking Type : Attached
Amenities
Listing Contracted With: EXP REALTY






