
-
From Our Gallery
Description
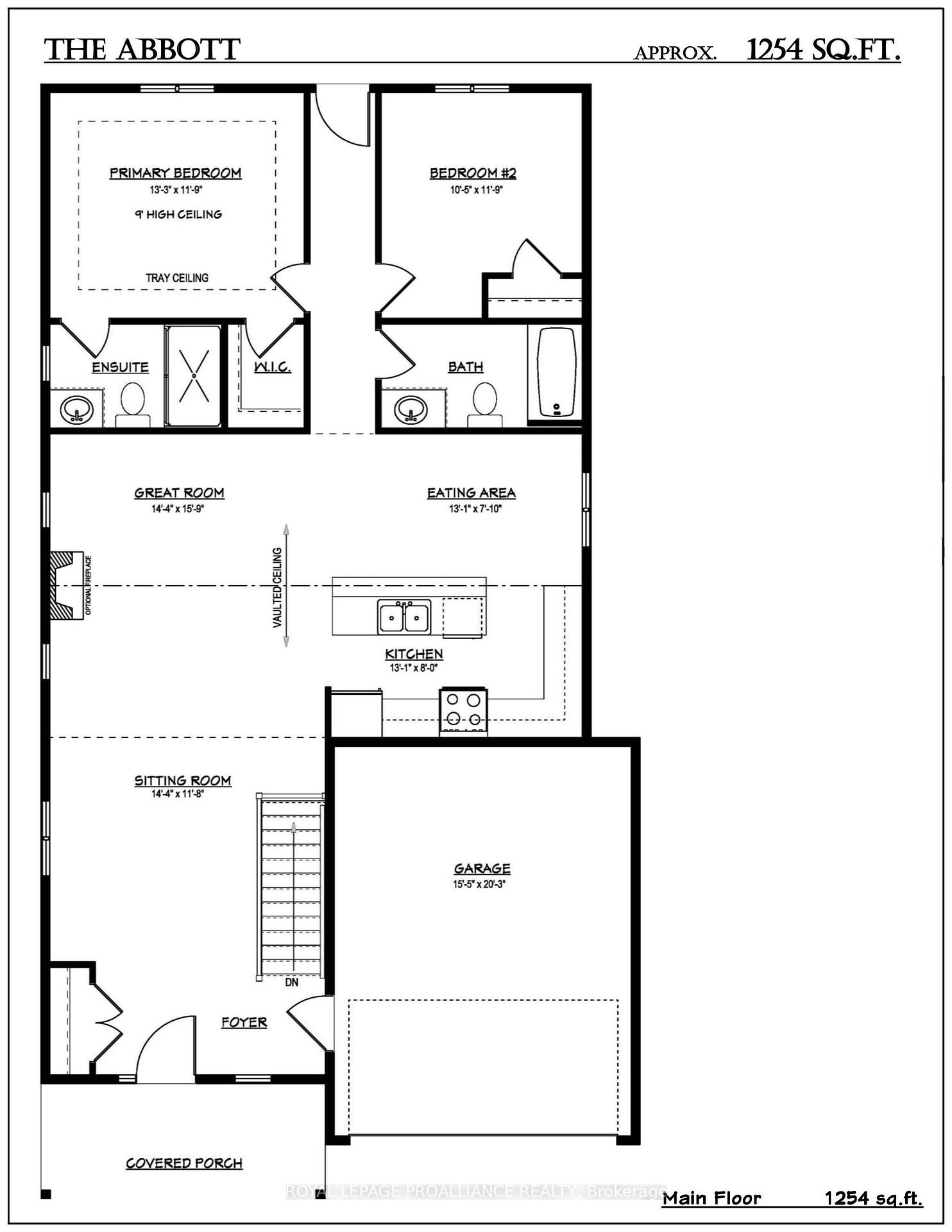
WELCOME TO WESTGATE, Brighton's newest community, offering a selection of thoughtfully designed floor plans, attractive pricing and available lots with closings as early as Spring 2027. The neighbourhood is ideally situated between downtown and the stunning Presqu'ile Provincial Park, where you can hike nature trails, enjoy world-class bird watching, swim or relax along sandy beaches. "THE ABBOTT" is a stunning 2 Bedroom, 2 Bath bungalow, offering 1254 sq ft of main floor living space with beautiful features and finishes! Your customized kitchen is perfect for entertaining with a sit-up Island, modern lighting and ample counter space and cabinetry. Open-concept Dining, Kitchen and Great Room areas are enhanced by vaulted ceilings, creating a spacious and inviting atmosphere. The Primary suite offers a walk in closet and a luxurious ensuite with walk-in shower. An attached 1.5-car garage provides direct access to the foyer, while the bright lower level includes a rough-in bath that can be finished now or later for added living space. Additional features include Sodding, HRV and high-efficiency furnace for year-round comfort. An excellent opportunity to personalize your dream home with your own selections and finishes from floor to ceiling, inside and out! An unmatched location for recreation and convenience, WESTGATE places you a short bike, stroll or moments drive from Brighton's many amenities, including shopping, cafes, restaurants, Rec Centre, parks, curling club, YMCA, schools, tennis and pickleball courts. SEVERAL ADDITIONAL FLOOR PLANS AVAILABLE TO SUIT YOUR LIVING STYLE AND NEEDS!
Location Description
Ontario Street to Lancaster Drive
Property Detail
- Community: Brighton
- Property Type: Vacant/Residential Freehold
- Bedrooms: 2
- Bath: 2
- Garages: Attached
- Annual Property Taxes : $ 0
- sqft
Facts and Features
- Foundation Type: Poured Concrete
- Counstruction Material : Vinyl Siding
- Total Parking Space : 3.5
- Parking Type : Attached
Amenities
Listing Contracted With: ROYAL LEPAGE PROALLIANCE REALTY




